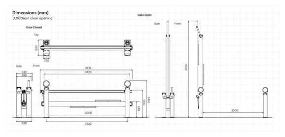
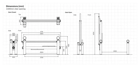
Traffic Gate
We understand that your loading docks, access points and doorways are critical for your company’s success. Without them your operation slows down, orders stop dispatching and your operational reputation is at risk. That is why we have engineered the Traffic Gate to protect your facility’s busiest work zones.
Our innovative polymer design ensures that all impact energy is deflected away from your valuable operations, keeping your employees safe and loading bays free from costly damage. The Traffic Gate is low maintenance and defends your Goods in/Goods out areas and doors from impacts with forklift trucks.




























